Home > Over 2,000 Sq. Ft. Plans > Channel Watch 3887-4E

Channel Watch 3887-4E

Over 2,000 Sq. Ft.

Square Feet

3887

Elevation

40’-0”

Number of Floors

4

Elevator

Yes

Bathrooms

3 full / 2 half

Bedrooms

4


Dimensions

39′-8″ wide x 64′-0″ deep x 40′-0″ high


Ground Floor Ceiling Height

8′-0″


First Floor Ceiling Height

9′-0″


Second Floor Ceiling Height

9′-0″ & 10′-0″ + Vaulted


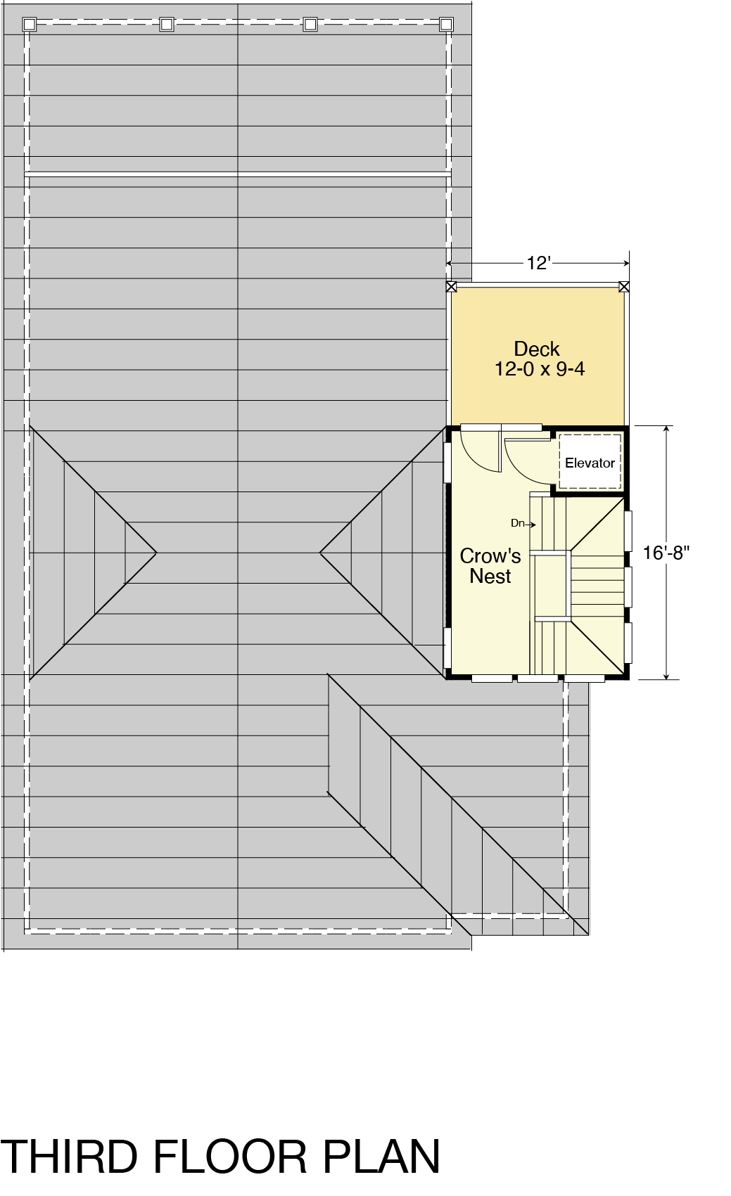
Third Floor Ceiling Height

8′-0″ + Vaulted


DOWNLOAD PLAN (PDF)

DESCRIPTION

The Channel Watch 3887-4E is a cottage plan with four bedrooms, three full bathrooms, two half bathrooms, vaulted ceilings, and an elevator. It also features a trendy Crow's Nest tower with the best view. The Main Bedroom is spacious and has an ensuite with a huge shower and soaker tub, making it an excellent choice for those who love to be pampered.

VIEW OTHER HOUSE PLANS