Home > Over 2,000 Sq. Ft. Plans > Charleston 2320-4E

Charleston 2320-4E

Over 2,000 Sq. Ft.

Square Feet

2320

Elevation

35’-0”

Number of Floors

3

Elevator

Yes

Bathrooms

3

Bedrooms

4


Dimensions

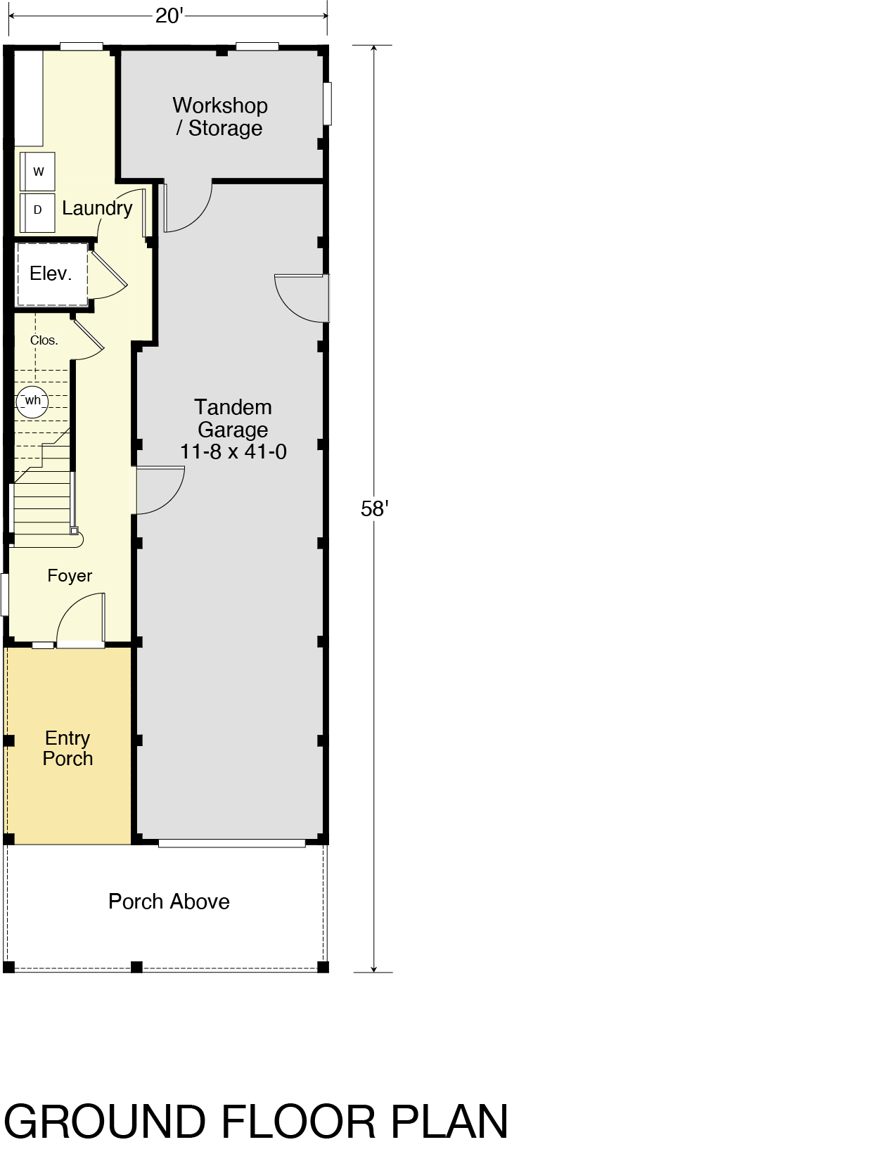
20’-0” wide x 58’-0” deep x 35’-0” high


Ground Floor Ceiling Height

8’-0”


First Floor Ceiling Height

9’-0”


Second Floor Ceiling Height

9’-0”


Third Floor Ceiling Height

N/A


DOWNLOAD PLAN (PDF)

DESCRIPTION

The Charleston 2320-4E beach house plan is a spacious and well-designed home, offering 2,320 sq. ft. of living area along with four bedrooms, three bathrooms, and the convenience of an elevator.

KEY FEATURES

Ground Floor - This level includes a tandem garage, a workshop/storage area, an entry porch, a welcoming foyer, and a practical laundry area.

First Floor - The first floor features a covered porch, a spacious great room, a dining area, a well-appointed kitchen, and a private bedroom with an en suite bathroom.

Second Floor - On the second floor, you will find another covered porch, three additional bedrooms, two extra bathrooms, and a designated area for a stack washer/dryer.

It's worth noting that the layout allows for flexibility, as the 2nd and 3rd level floors can be switched to accommodate specific views or living needs. Additionally, the top floor offers optional vaulted ceilings, adding to the overall charm and appeal of this beach house plan.

VIEW OTHER HOUSE PLANS