Home > Over 2,000 Sq. Ft. Plans > Lookout 2112-5E

Lookout 2112-5E

Over 2,000 Sq. Ft.

Square Feet

2112

Elevation

40’-8”

Number of Floors

4

Elevator

Yes

Bathrooms

4

Bedrooms

5


Dimensions

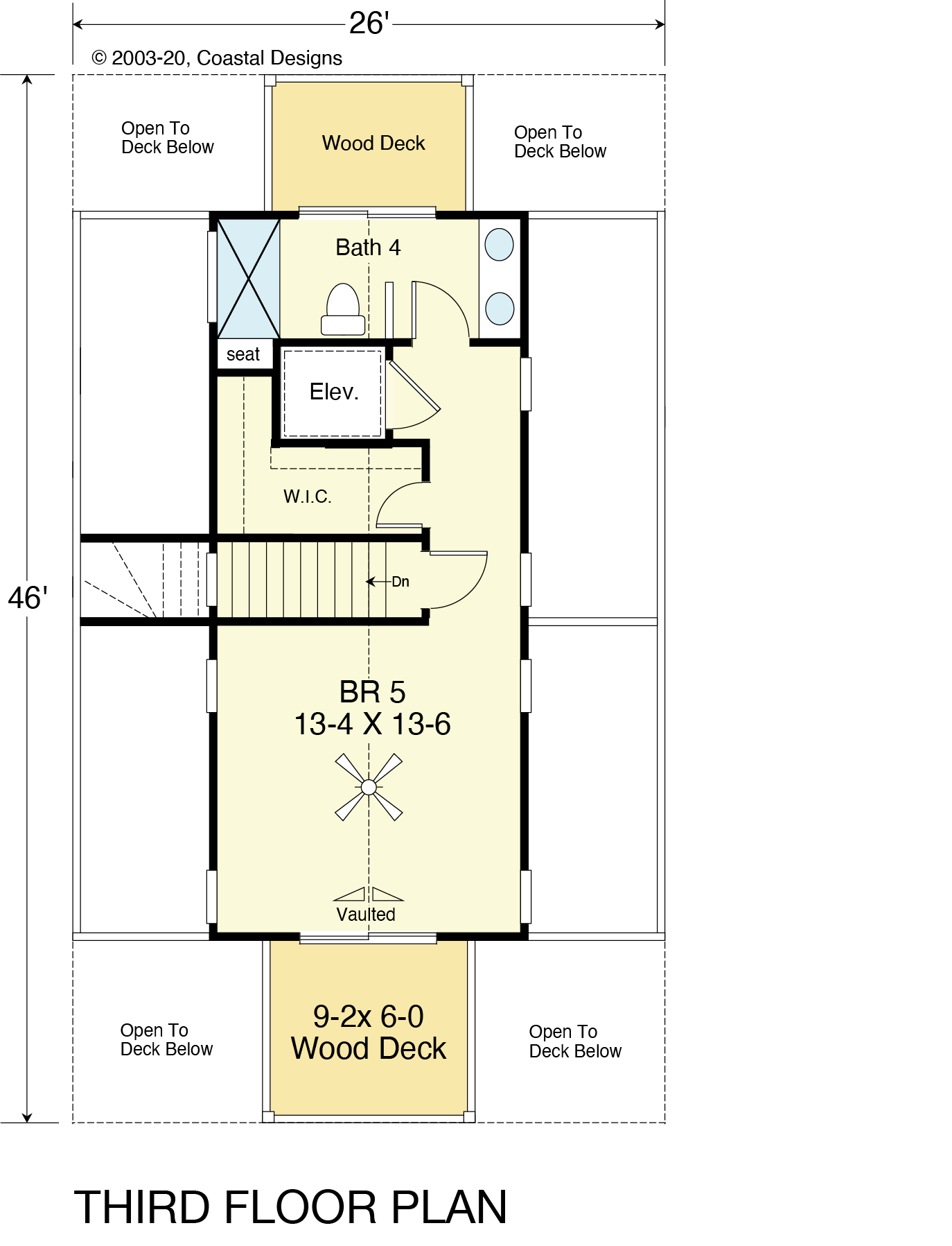
26’-0” wide x 46’-0” deep x 40’-8” high


Ground Floor Ceiling Height

8’-0"


First Floor Ceiling Height

8’-0"


Second Floor Ceiling Height

9’-0"


Third Floor Ceiling Height

8’-0" + Vaulted


DOWNLOAD PLAN (PDF)

DESCRIPTION

Here are the detailed features of the Lookout 2112-5E beach house plan.

At 2,112 square feet, this beach house offers spacious living with five bedrooms, four bathrooms, and the convenience of an elevator.

KEY FEATURES

Ground Floor: The ground floor includes carports for parking, a rinse shower for washing off sand after a day at the beach, storage space, and an entry foyer for a warm welcome.

First Floor: On the first floor, you'll find two bedrooms with access to a wood deck and a shared bathroom, a primary bedroom with an ensuite bathroom and access to the front porch, and a dedicated area for a stacked washer/dryer inside the shared bathroom.

Second Floor: The second floor features a great room for family gatherings, a well-appointed kitchen, an additional bedroom, an extra bathroom, and access to wood deck and porch, providing a perfect setting for relaxation and entertainment.

Third Floor: The top floor offers another additional bedroom with an ensuite bathroom and wood decks in the front and back, providing stunning views and ample space for enjoying the outdoors.

SEE ALL LOOKOUT HOUSE PLANS