Home > Over 2,000 Sq. Ft. Plans > Ocean View 4485-8E

Ocean View 4485-8E

Over 2,000 Sq. Ft.

Square Feet

4485.3

Elevation

47’-7”

Number of Floors

4

Elevator

Yes

Bathrooms

9.5

Bedrooms

8


Dimensions

46’-0” wide x 74’-0” deep x 47’-7” high


Ground Floor Ceiling Height


First Floor Ceiling Height

9’-1 1/2”


Second Floor Ceiling Height

9’-1 1/2”


Third Floor Ceiling Height

9’-1 1/2” + Vaulted


DOWNLOAD PLAN (PDF)

DESCRIPTION

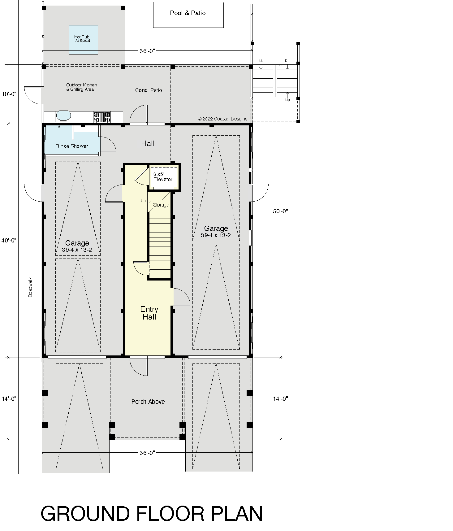
Do you need eight bedrooms and 9 ½ baths for your future beach house? You've come to the right place! The Ocean View 4485-8E cottage plan includes the following:

- A main suite on the third (top) floor
- Seven additional bedrooms on the first & second floors
- 9 ½ bathrooms
- Open-concept dining & living space on the top floor
- Owner's pantry & storage and guest's pantry
- Owner's closet and guest's closet
- Game room on the first floor
- Outdoor kitchen & grilling area, and a special area for a hot tub on the ground floor
- An elevator
- Covered porches
- An optional pool/patio suggestion

The Ocean View 4485-8E is 46’-0" wide x 74’-0" deep x 47’-7" high with a 4,485.3 sq. ft. living area.

Please do not hesitate to contact us for more information.

SEE ALL OCEAN VIEW HOUSE PLANS