Home > Over 2,000 Sq. Ft. Plans > Sandy Ridge 2891-7E

Sandy Ridge 2891-7E

Over 2,000 Sq. Ft.

Square Feet

2891.2

Elevation

41’-9”

Number of Floors

4

Elevator

Yes

Bathrooms

5

Bedrooms

7


Dimensions

34’-0” wide x 44’-0” deep x 41’-9” high


Ground Floor Ceiling Height


First Floor Ceiling Height

8’-0"


Second Floor Ceiling Height

9’-0"


Third Floor Ceiling Height

8’-0"


DOWNLOAD PLAN (PDF)

DESCRIPTION

The Sandy Ridge 2891-7E beach house plan is a spacious and luxurious option. It offers an impressive 2,891 sq. ft. of living space with seven bedrooms, five bathrooms, and convenient elevator access.

KEY FEATURES

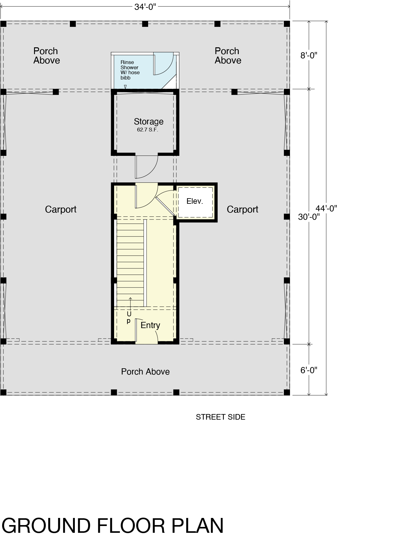
Ground Floor: The ground floor is designed with practicality in mind. It features carports for parking, an entry area, storage space, and a rinse shower for post-beach cleanup, ensuring that your beach house experience is as convenient as possible.

First Floor: The first floor includes four bedrooms, two of which have access to the covered porch at the back. Additionally, there are two shared bathrooms, a convenient area for a washer/dryer, and access to covered porches at the front and back of the house.

Second Floor: On the second floor, you'll find a well-appointed kitchen with an island and dinette area, a spacious dining area, and a great room for gathering. There's also an additional bedroom with an ensuite bathroom, access to a private open deck, and another bathroom. This floor also offers access to a covered porch at the back and another open deck in the front, providing ample outdoor living space.

Third Floor: The third floor is designed to be comfortable and versatile. It features a spacious loft space with two loft bunk areas, each capable of accommodating up to two bunk beds. Additionally, there's a shared bathroom on this floor, completing the functional and comfortable layout of the beach house.

VIEW OTHER HOUSE PLANS