Home > Over 2,000 Sq. Ft. Plans > Sealane II 2467-4E

Sealane II 2467-4E

Over 2,000 Sq. Ft.

Square Feet

2467

Elevation

35’-0”

Number of Floors

3

Elevator

Yes

Bathrooms

3.5

Bedrooms

4


Dimensions

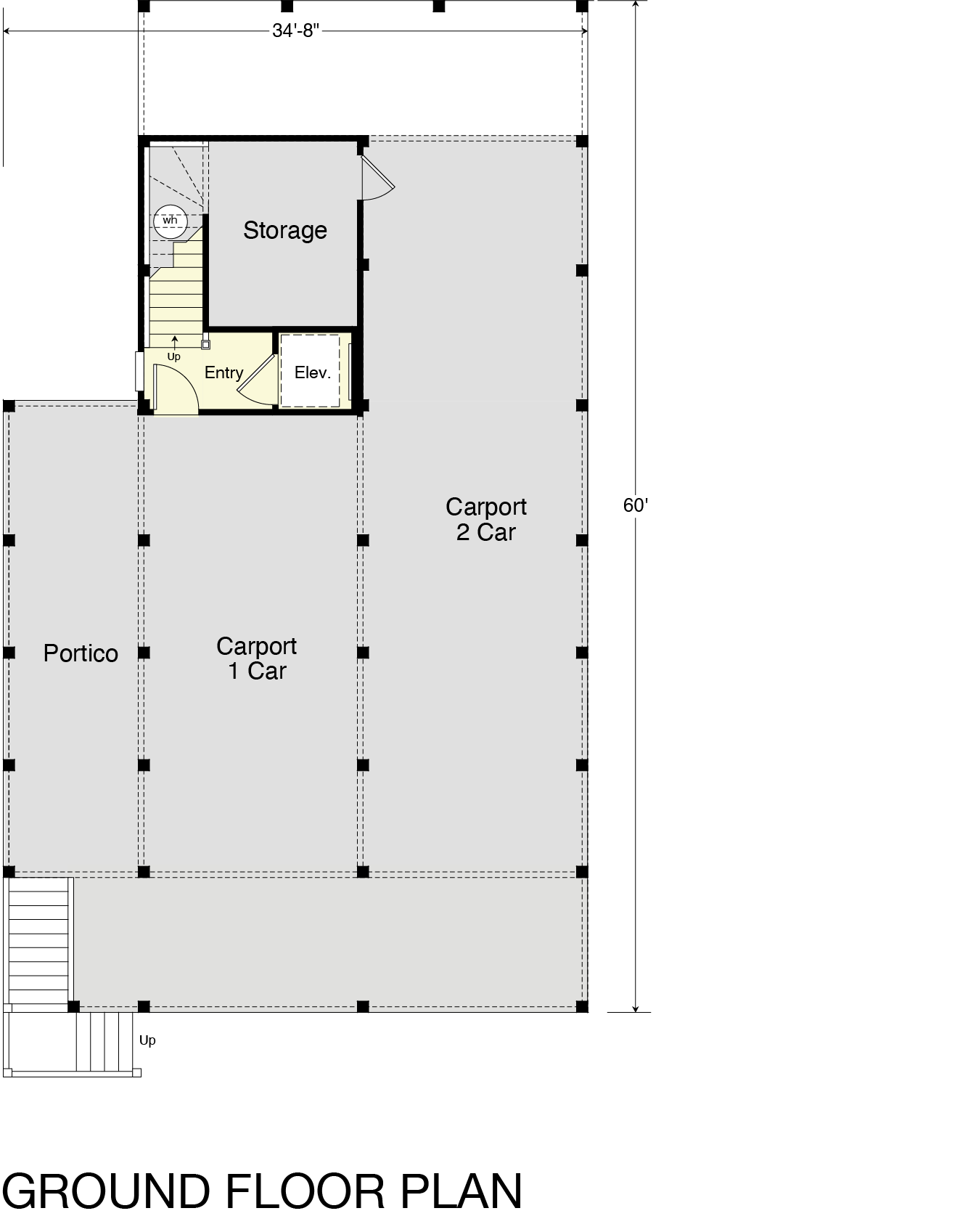
34’-8” wide x 60’-0” deep x 35’-0” high


Ground Floor Ceiling Height

7’-10”


First Floor Ceiling Height

8’-0” Ceiling Heights and 4” Exterior Walls


Second Floor Ceiling Height

9’-0”


Third Floor Ceiling Height

N/A


DOWNLOAD PLAN (PDF)

DESCRIPTION

The Sealane II 2467-4E house plan offers a spacious and comfortable living area of 2,467 sq. ft., equipped with four bedrooms, three-and-a-half bathrooms, and an elevator. What's unique about this plan is that the first and second-floor plans are reversed. Although no optional ground floor plans are available for expanding the space, you'll find that this plan has everything you need to feel at home. From the ground floor plan inclusive of carports, entry, and storage to the top floor featuring a Great Room, Kitchen, Dining Area, one and a half bathrooms, the fourth bedroom, along with two covered porches and an open side deck, this house plan has it all. Get inspired and make your dream home a reality with the Sealane II 2467-4E house plan.

SEE ALL SEALANE HOUSE PLANS