Surf 1940-4E

Under 2,000 Sq. Ft.

Square Feet

1940.5

Elevation

42’-2”

Number of Floors

4

Elevator

Yes

Bathrooms

3

Bedrooms

4


Dimensions

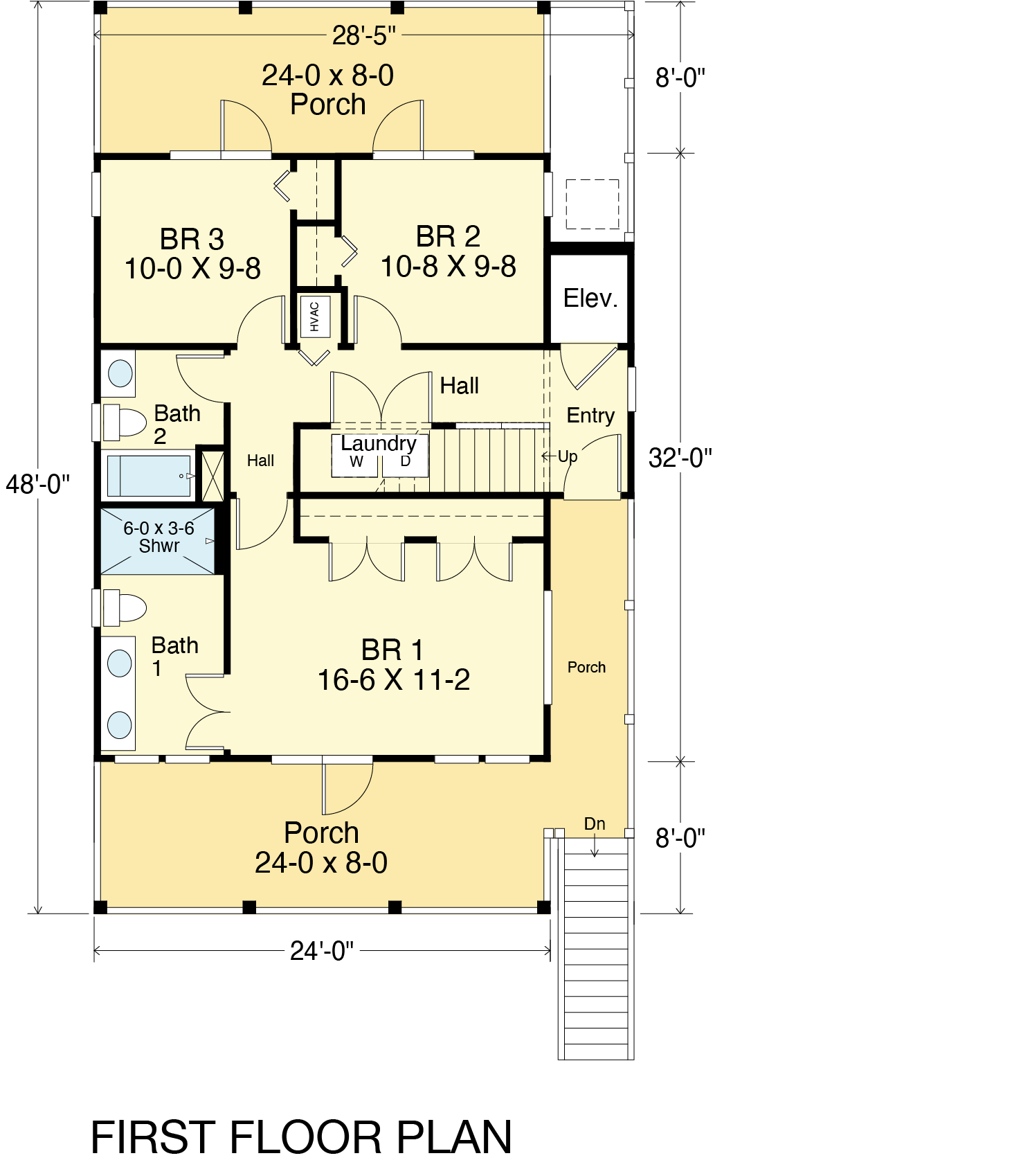
28'-5" wide x 48'-0" deep x 42'-2" high


Ground Floor Ceiling Height


First Floor Ceiling Height

9'-0"


Second Floor Ceiling Height

9'-0"


Third Floor Ceiling Height

8'-0” + Vaulted


DOWNLOAD PLAN (PDF)

DESCRIPTION

The Surf 1940-4E is a charming and compact cottage with clever use of space. It boasts three full baths and offers comfort and convenience. Four cozy bedrooms and a third-floor loft provide stunning panoramic views, making this cottage perfect for relaxation. Additionally, the bonus elevator makes this home exceptionally accessible while remaining budget-friendly.

KEY FEATURES

Ground Floor: The property features carports, a back patio, a convenient rinse shower, and a small heated entry area.

First Floor: Enjoy the luxury of two additional bedrooms, a main bedroom with an ensuite bathroom, a shared bathroom, a washer/dryer closet, and spacious entry areas. The first floor also offers a wraparound porch at the front and an additional porch at the back.

Second Floor: This floor includes an extra bedroom, a shared bathroom, a kitchen with an island, and a welcoming great room. It also provides front and back porches for your enjoyment.

Third Floor: The loft on the third floor features a wet bar and a covered porch, making it a perfect space for relaxation and entertainment.

SEE ALL SURF HOUSE PLANS