Home > Over 2,000 Sq. Ft. Plans > Waterside 3776-5E

Waterside 3776-5E

Over 2,000 Sq. Ft.

Square Feet

3776

Elevation

40’-0”

Number of Floors

4

Elevator

Yes

Bathrooms

5

Bedrooms

5


Dimensions

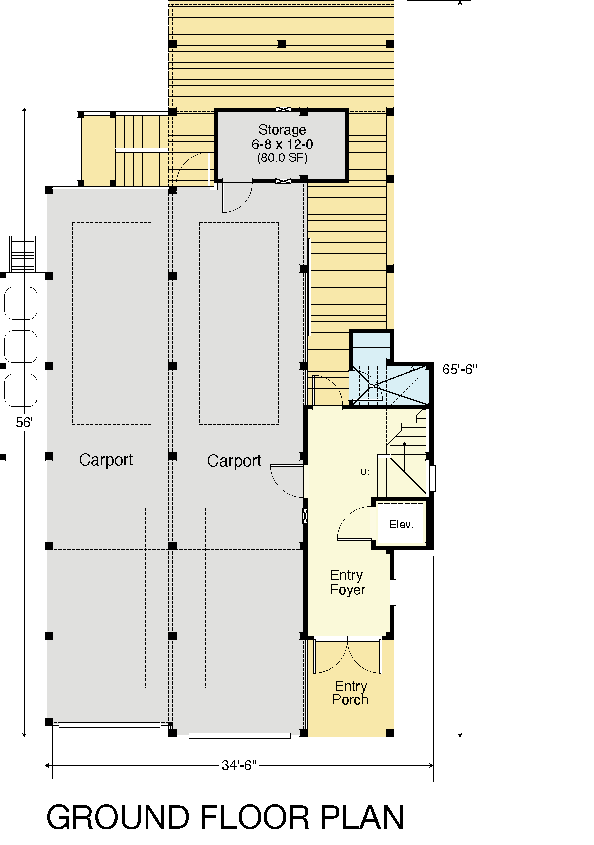
34’-6” wide x 65’-6” deep x 40’-0” high


Ground Floor Ceiling Height

8’-0” Flat Ceilings


First Floor Ceiling Height

8’-0” Flat Ceilings, 2x6 Exterior Walls, 2x4 Interior Walls


Second Floor Ceiling Height

9’-0” Flat Ceilings, 2x6 Exterior Walls, 2x4 Interior Walls


Third Floor Ceiling Height

8’-6” Flat Ceilings with Exposed Rafters


DOWNLOAD PLAN (PDF)

DESCRIPTION

This floor plan is designed to focus all activities on the rear view, which is likely a waterfront.

The ground floor has a large elevator that serves all floors, a convenient rinse shower, 3-4 parking spaces, and ample storage space.

On the first floor, there are three bedrooms with en suite baths, a family room, and a large laundry area with a sink and utilities.

The second floor has two bedrooms with en suite baths, a kitchen, and a living and dining area that extends the entire depth of the floor. Rear decks are available on both floors, with stairs leading from the ground to the first-floor deck. The side stair tower leads up to a lookout tower with a pergola-covered deck on the side.

The third-floor loft has an optional half bath. The ground floor parking area has access to the stairway tower, providing parking for up to four cars or boats. This plan has a more contemporary design with many unique details. It is only 40’-0" high and narrow enough, at 34’-6" wide, to fit many lots.

SEE ALL WATERSIDE HOUSE PLANS