Home > Over 2,000 Sq. Ft. Plans > Waterway 3889-5E

Waterway 3889-5E

Over 2,000 Sq. Ft.

Square Feet

3888.9

Elevation

40’-0”

Number of Floors

4

Elevator

Yes

Bathrooms

4 full / 2 half

Bedrooms

5


Dimensions

43′-8″ wide x 64′-0″ deep x 40′-0″ high


Ground Floor Ceiling Height

8′-1 ½″


First Floor Ceiling Height

9′-1 ½″


Second Floor Ceiling Height

10′-0″


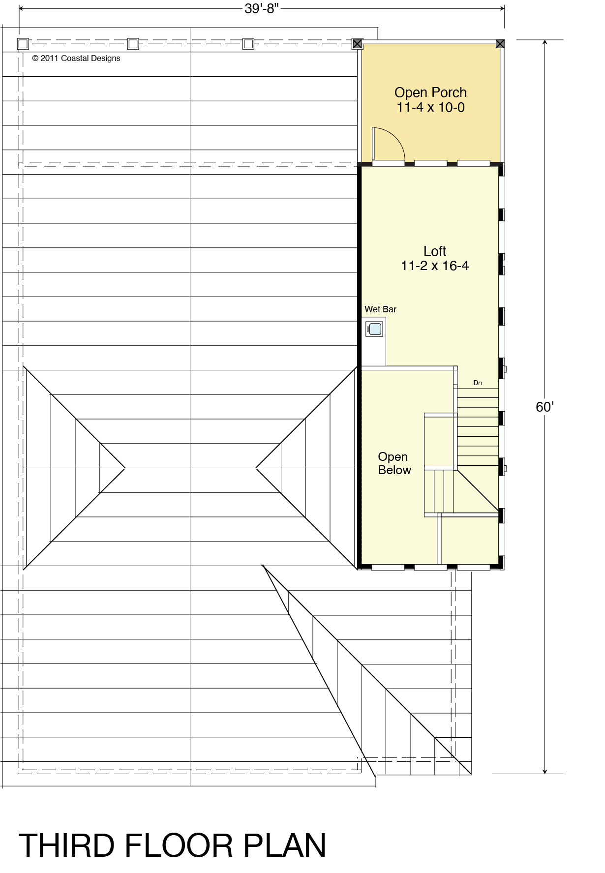
Third Floor Ceiling Height

7′-6″


DOWNLOAD PLAN (PDF)

DESCRIPTION

The Waterway 3889-5E cottage plan includes five bedrooms, four full bathrooms, two half-bathrooms, and an elevator. With a potential six bedrooms, this plan is another proven winner - it also can have two Main Suites on different levels. The Loft tower is a very popular spot to catch the sunset with a cool drink.

VIEW OTHER HOUSE PLANS