Home > Over 2,000 Sq. Ft. Plans > Laurel 2930-5E

Laurel 2930-5E

Over 2,000 Sq. Ft.

Square Feet

2930

Elevation

39’-2”

Number of Floors

4

Elevator

Yes

Bathrooms

4.5

Bedrooms

5


Dimensions

36′-0″ wide x 56′-0″ deep x 39′-2″ high


Ground Floor Ceiling Height

8′-0″


First Floor Ceiling Height

9’-0”


Second Floor Ceiling Height

8′-0″


Third Floor Ceiling Height

8′-0″


DOWNLOAD PLAN (PDF)

DESCRIPTION

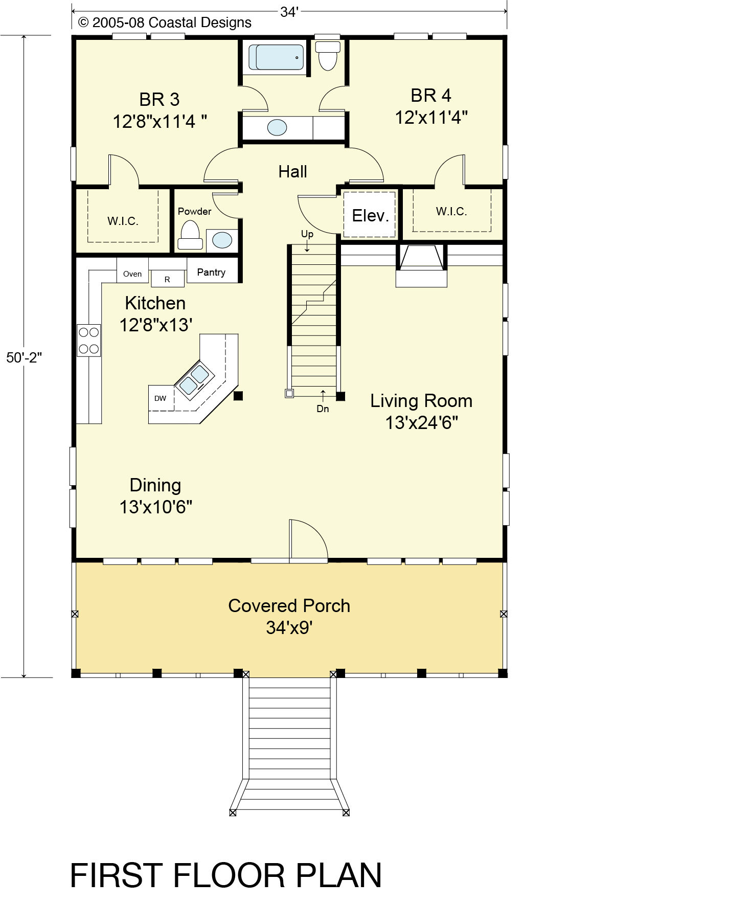
The Laurel 2930-5E is one of our 'over 2,000 sq. ft.' cottage plans, including an elevator, five bedrooms, and four-and-half bathrooms. This plan is similar to the Laurel 2800-5E but has an added loft that doubles as a lookout tower.

SEE ALL LAUREL HOUSE PLANS