Home > Over 2,000 Sq. Ft. Plans > Peninsula 2034-4E

Peninsula 2034-4E

Over 2,000 Sq. Ft.

Square Feet

2033.7

Elevation

44’-0”

Number of Floors

4

Elevator

Yes

Bathrooms

3

Bedrooms

4


Dimensions

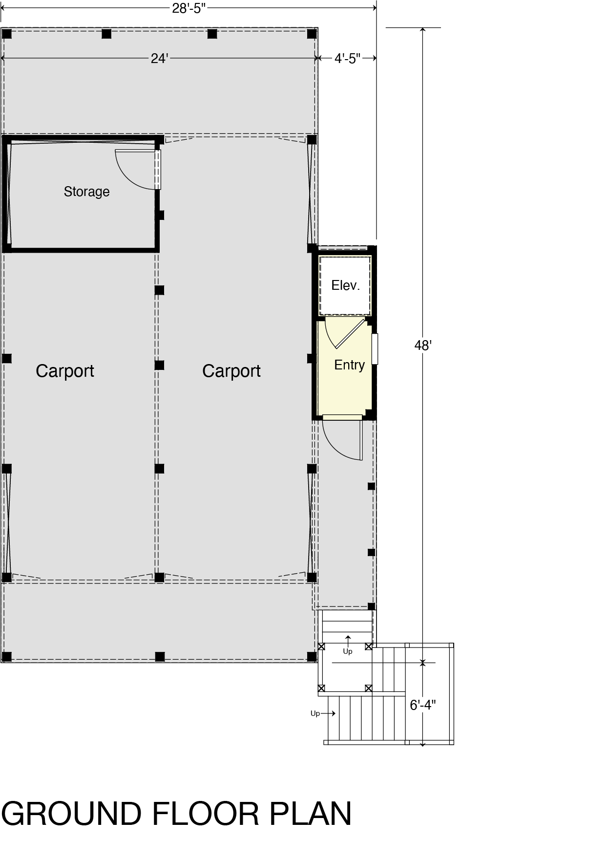
28’-5” wide x 48’-0” deep x 44’-0” high


Ground Floor Ceiling Height


First Floor Ceiling Height


Second Floor Ceiling Height


Third Floor Ceiling Height


DOWNLOAD PLAN (PDF)

DESCRIPTION

The Peninsula 2034-4E beach house plan is a spacious and comfortable option, offering a generous 2,033.7 sq. ft. of living area. This plan includes four bedrooms, three bathrooms, and an elevator, providing residents and guests convenience and comfort.

KEY FEATURES

Ground Floor: This level features convenient amenities such as carports, a rinse shower, storage space, and an entry hall.

First Floor: Residents can enjoy porches, three bedrooms, two bathrooms, a designated area for a stack washer/dryer, an entry hall, and an entry deck.

Second Floor: Modern living is showcased on this floor, including porches, a great room with an optional fireplace, a dining area, a kitchen, an additional bedroom, and an extra bathroom.

Third Floor: The top floor offers a loft area and an uncovered porch, providing additional space for relaxation and enjoyment of the surroundings.

VIEW OTHER HOUSE PLANS